










ナチュラルな雰囲気のお庭にマッチします。お好みでカラーをお選びください。
オプションで、壁面に固定することが可能なジラーレモチーフ専用の伸縮固定バンドがご使用可能です。
ジラーレ モチーフには、ストライプの他にも、チェック・市松模様シリーズがあります。
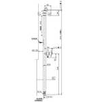
| サイズ | φ34×H1041(mm) |
|---|---|
| 材質 | [外筒]アルミ [立上り管]ステンレス [蛇口]銅合金 |
| 仕上げ・塗装 | [外筒]焼付塗装 [蛇口]ニッケルクロムメッキ |
| カラー | アプリコット アクアブルー ペールグリーン |
| 重量 | 2.3kg |
| 基準取得状況 | 水道JWWA |
| 生産国 | 日本製 |
| 注意事項 |
|
| セット内容 | 水栓柱本体、蛇口(整流網付)、補助蛇口 |
対象商品は全品10%OFF
当店人気ブランドの洗面ボウルや蛇口の期間限定SALE!
投稿はありません