










突出したデザイン力と優れた成型技術の人工大理石メーカー 【marmorin】
ヨーロッパでも高い評価を受けている「マルモリン」社のデザイン洗面器です。
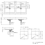
当店では洗面ボールと手洗器の定義を下記の基準によって選別しています。
【洗面ボウル・手洗い器の公差について】
洗面器や手洗器は製品の性質上、1%~2%程度の公差が生じる場合があり、若干の個体差があります。
※ 公差とは、製造過程で生じる仕上がり寸法のばらつきで、許容される誤差の範囲を表すのが公差です。
※ 洗面器や手洗器に関していえば、製造時の気温や湿度、焼き上げる温度などが公差に影響します。
対象商品は全品10%OFF
当店人気ブランドの洗面ボウルや蛇口の期間限定SALE!
投稿はありません