










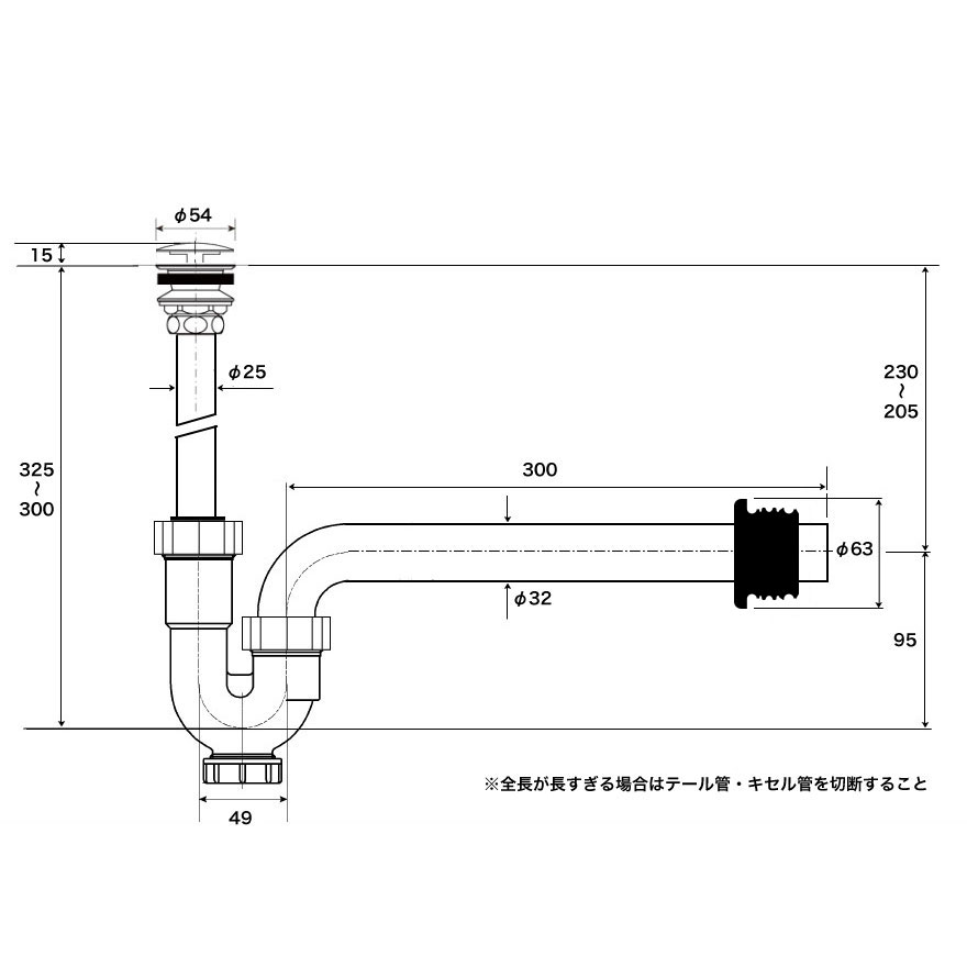
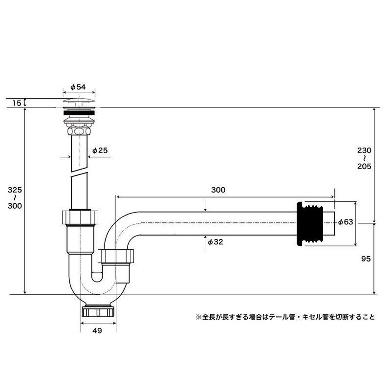
金属製の排水口金具と樹脂製のトラップを組み合わせた25mm規格の壁排水用トラップ管です。すべて金属製の部材のトラップ管に比べて大幅にコストダウンできます。シンク下が扉などで隠れて見えなくなる場合に最適です。
また、トラップ管には掃除口がついているので配管内のお掃除ができて便利。誤って小物を流してしまった時にも取り出せるので安心です。
Pトラップの全長が長すぎる場合はテール管、トラップ部分をカットして調整できます。
※この商品は、25mm規格の上部排水金具と32mm規格の樹脂製トラップ管を組み合わせた商品です。テール管と排水トラップの間に32mm規格用変換アダプタを取り付けて接続しています。
| 種別 | 25mm規格Pトラップ(壁排水用配管/アフレ無し) |
|---|---|
| 対応手洗器 | 排水穴径 φ39~43mmのオーバーフローの無い手洗器に対応 |
| サイズ | H325×W49mm ※最大値 |
| 材質・色/仕上げ |
化粧キャップ:めっき無しゴールド/黄銅 ※レトロな風合いに経年変色します。 丸鉢排水口金具25:クロムめっき/黄銅 変換アダプタ:NBRゴム テール管:クロムめっき/黄銅 トラップ管:樹脂 防臭キャップ:ゴム製排水アダプター |
| セット内容 | 丸鉢排水口金具、テール管、変換アダプタ、樹脂Pパイプ、防臭ゴム(25mm規格壁排水用配管一式) |
最大45%OFF
人気ブランド洗面ボウルと蛇口のセットが超お得!
投稿はありません