











「古き良き」という言葉がしっくりくるコレクティブルズ洗面ボウル。1960年代より雑貨の輸出入を営んできたイブキクラフトらしい雑貨風なデザインが特徴的な洗面器です。アンティーク調の水栓やインテリアとの相性もバッチリ。コレクティブルズは、ほんのり青緑がかった素地に藍色のイングリッシュカントリー調のモチーフが映えるおしゃれなデザインの手洗い鉢です。
エッセンスMラウンドは、埋め込み設置または上置き設置できる径300ミリの丸形手洗い器です。レトロ感が漂う洗面ボウルは使うほどに馴染みます。長く使っていただき年月の積み重ねをお楽しみください。
エッセンスのSオーバルおよびMラウンドシリーズは全部で5種類あり、ボウルの素地の色がすべて異なります。

当店では洗面ボールと手洗器の定義を下記の基準によって選別しています。
| 用途・種別 | 手洗い用手洗い器 |
|---|---|
| 設置タイプ | 上置き型/埋め込み型 |
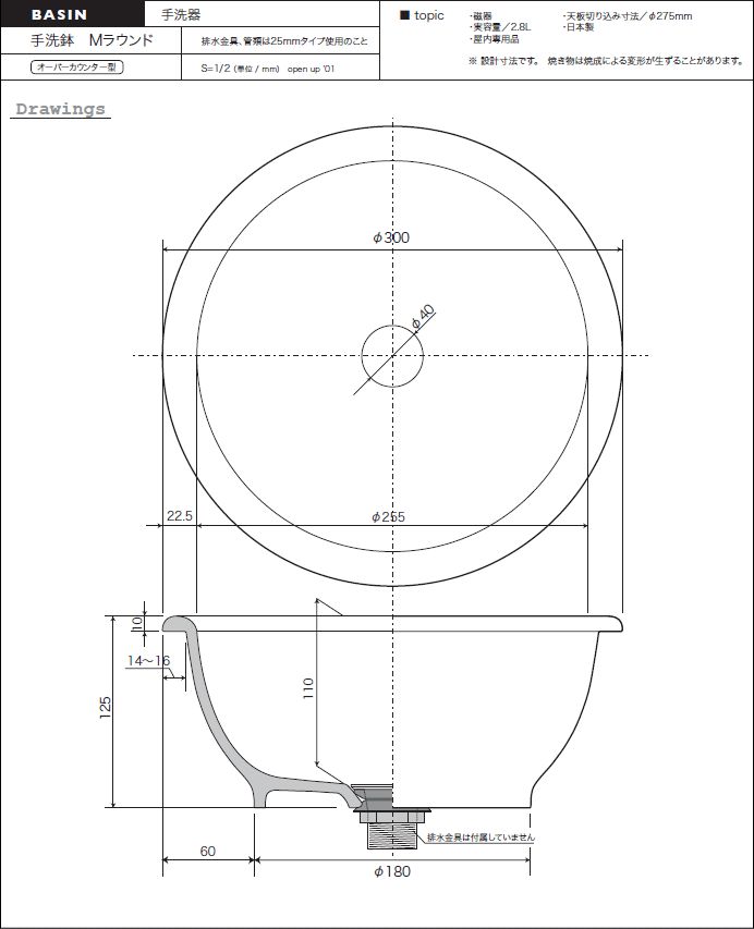
| サイズ | φ300×H125(mm) |
| 容量 | 2.8L |
| 材質 | 磁器 |
| オーバーフロー | 無し オーバーフローについての解説 |
| 排水穴径 | φ40mm |
| 適合排水金具 | 25mm規格 |
| セット内容 | 手洗器本体(排水金具、トラップ管は付属しません) |
| 備考 |
|
| ブランド | イブキクラフト / エッセンス(ESSENCE) |

2000年に当時雑貨メーカーであったイブキクラフト(伊吹物産)がスタートさせた建築意匠部品のブランドです。
「暮らしは楽しくあればいい」というモノづくり思考から生まれました。
「エッセンス(イブキクラフト)」の手掛ける手洗い器や洗面器は、西洋風デザインでありながら、どこかレトロでノスタルジックな上質でさり気ないセンスの良さが魅力です。その可愛い雑貨のような雰囲気は多くのファンを魅了しています。また、商品によってテイストや路線を変え、カントリー風、北欧風、和モダンと、どれも抜群のお洒落センスと絶妙なサイズ感により、様々な年齢層から支持を得ています。
『こんなお洒落な洗面ボウルを探していました! こんな可愛い手洗いボウルが欲しかったの!』
お客様からのそんなお声をいただきながら、はや15年、当店は毎日元気に販売しています!

埋込みや半分埋め込む場合、従来のシリコンコーキング材等を洗面器とカウンターの接地面に塗って固定するのが一般的な手法です。
上置きで洗面器・手洗い器を固定する際は、シリコンコーキング材等を洗面器とカウンターの接地面に塗って固定するのが一般的な手法でしたが、上置き手洗い用固定金具の登場により、施工方法も変わりつつあります。
シリコンコーキング材等の施工は、強固に固定することができる反面、洗面器や手洗い器の交換の際、取り外すのに非常に手間がかかったり、ガラスボウル等にコーキングを行うと、施工面が見えてしまって仕上がりに不満が残ったりといった事があります。
その点、固定金具を使用すると仕上がりが綺麗で容易に取り外せる上、強固に設置することもできます。
以上をふまえてパパサラダでは、上置き手洗い器の設置には固定金具をおすすめしています。
[カウンター開口寸法]
25mm規格用卓上固定金具を使用する場合は、φ54mm~φ56mmで開口し
32mm規格用カウンター固定フランジを使用する場合は、φ60mmで開口して下さい。
水を溜めたい場合などに使用する32mm規格排水金具



【洗面ボウル・手洗い器の公差について】
洗面器や手洗器は製品の性質上、1%~2%程度の公差が生じる場合があり、若干の個体差があります。
※ 公差とは、製造過程で生じる仕上がり寸法のばらつきで、許容される誤差の範囲を表すのが公差です。
※ 洗面器や手洗器に関していえば、製造時の気温や湿度、焼き上げる温度などが公差に影響します。
対象商品は全品10%OFF
当店人気ブランドの洗面ボウルや蛇口の期間限定SALE!